El edificio en su interior cuenta con las normas de seguridad, como lo son las escaleras de emergencia, alternando con el elevador y las escaleras para una circulación vertical.
Se aprovecha la quinta fachada, como roof Garden dando un espacio privilegiado para los que trabajan hay dando un lugar de esparcimiento.
El edificio consta de una plaza de acceso y un área de servicios, así como también áreas para la entrada de ventilación y de iluminación, ubicando el estacionamiento en el sótano que consta de 3 niveles, existiendo un núcleo de escaleras y elevador, que llega a todos los niveles del edificio y del sótano.
PLANTA DE ESTACIONAMIENO DE SOTANO
El estacionamiento consta de 3 niveles de sótano, en la que cada planta cuenta con 28 cajones de estacionamiento, teniendo capacidad total por nivel para 56 autos ya que se utilizaran eleva autos.
La capacidad total en conjunto con los 3 niveles es de 168 autos.
Utilizando también los niveles de sótanos para cuarto de maquinas, cuarto de aire acondicionado, subestación eléctrica, cisterna, colectores de basura, y bodegas de intendencia, instalaciones para reciclado de agua.
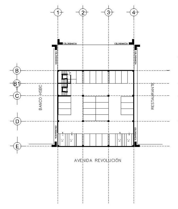
PLANTA BAJA
Consta de l acceso general, el vestíbulo, caseta de control de acceso, área de recepción y zona de espera, así como también sanitarios, para la circulación escaleras y elevador.
Teniendo una zona de servicios en la cual esta el acceso secundario o de trabajadores, caseta de control, escales y montacargas de servicios, y escales de servicio.
PLANTA PRIMER NIVEL
Cuenta con un área amplia para la exhibición de los productos, probadores, sanitarios, circulación vertical de elevador y escaleras, escaleras de servicios.
En la zona de servicios, guardarropas para trabajadores, comedor, bodega de productos, sanitarios.
PLANTA SEGUNDO NIVEL
En esta planta se puede encontrar oficinas relacionadas con el área de ventas, una zona de servicio de ventas, sanitarios, circulación vertical elevador, escaleras, escaleras de servicio, usos múltiples.
En el área de servicios se puede encontrar el cubo de escaleras y montacargas, sanitarios área de montaje.
PLANTA TERCER NIVEL
Se encuentran 3 oficinas, así como un salón tipo auditorio para la capacitación, zona de escritorios, recepción en el nivel, sanitarios, cubo de escaleras, elevador y escaleras de emergencia.
En el área de servicios, escaleras de servicios, montacargas área de montaje y bodega de intendencia.
PLANTA CUARTO NIVEL
Cuenta con 7 oficinas, 4 estándar, y 3 mas grandes en los parasoles de la fachada sur, una plaza central de escritorios de trabajo, una sala de juntas y usos múltiples, recepción de bienvenida, sanitarios, cubo de escaleras, elevadores.
En el área de servicios escaleras, bodega de intendencia, montacargas, escaleras de servicio.
PLANTA QUINTO NIVEL
Este nivel esta destinado para la administración de new balance en el cual se pueden encontrar 4 oficinas pequeñas y tres oficinas mas grandes en los parasoles de la fachada sur, un area central de escritorios de trabajo, recepción de bienvenida, cubo de escaleras y elevador, escaleras de servicio y sanitarios.
En la zona de servicios bodega de intendencia, cubo de escaleras y montacargas.
PLANTA SEXTO NIVEL Esta destinado para la subdirección, cuenta con dos oficinas con sala, y otra oficina con sala mesa de trabajo, y sanitario, así como un a oficina que es la mas grande en la cual esta destinada para el director de la marca la cual cuenta con mas área, en el centro del nivel hay una zona de escritorios de trabajo, recepción de bienvenida, sanitarios, sala de juntas, cubo de escaleras y elevador. En la zona de servicio cubo de escaleras y montacargas, bodega de intendencia y escaleras de emergencia.
PLANTA SEPTIMO NIVEL
La planta esta destinada para seguir con la función de dirección, cuenta con 4 oficinas pequeñas y otras tres oficinas ubicadas en los parasoles de la fachada sur, cuenta con un área central de escritorios de trabajo, sala de juntas, sanitarios, cubo de escaleras y elevador.
En la parte de servicios cubo de escaleras, montacargas y escaleras de servicio asi como bodega de intendencia.
PLANTA OCTAVO NIVEL
La planta esta destinada para PENT HOUSE el cual cuenta con tres salones con capacidades diferentes, para 8, 12, 18 personas respectivamente, sanitarios, cubo de escaleras, elevadores, escaleras de servicio.
En la zona de servicios, cocina, sanitarios, cubo de escaleras y montacargas.
CUADRO RESUMEN DE DESGLOSE DE AREAS
CUADRO RESUMEN DE DESGLOSE DE ÁREAS
DESGLOSE DE SUPERFICIE CONSTRUIDA POR NIVEL
AGUA POTABLE
Esta se suministra mediante una toma de la red municipal hacia las cisternas del conjunto las cuales cuentan con la capacidad para tres días de almacenamiento, la forma en que se distribuye es por medio de dos equipos de bombeo hacia tinacos ubicados arriba de los cubos de escaleras y posteriormente por gravedad va a cada una de las viviendas.
DRENAJE SANITARIO
El drenaje sanitario esta diseñado para que se dirija a la planta de tratamiento y después se bombeara ya el agua tratada a la red municipal.
DRENAJE PLUVIAL
Esta totalmente separado del drenaje sanitario y cuenta con una red exclusiva para captar el agua de lluvia desde las azoteas y plazas, desde aquí se dirige al tanque de tormentas y que posteriormente se bombeara a la red que indique la autoridad.
RED ELECTRICA
Contara con un transformador exclusivo para dar el servicio eléctrico, su instalación es por plafón del estacionamiento a las concentraciones de medidores para que desde ahí se distribuya a las diferentes plantas y servicios.
RED TELEFONICA
Contara con una red oculta con ductos y registros para dejar la tubería lista en cada oficina.
CANALIZACION PARA TELEVISION
Contara con ductos y registros para dejar la tubería lista en cada sala de juntas desde azoteas.
SISTEMA CONTRA INCENDIOS Y PROTECCION CIVIL
Contara además con un sistema contra incendios tanto para el área de estacionamientos y al interior del edificio, además de la señalización correspondiente para protección civil.
SISTEMA DE PARARRAYOS
El proyecto contempla varios equipos de puntas ubicados de acuerdo a un diseño que cubra toda el área del edificio.
GAS CON TANQUES ESTACIONARIOS
Se cuenta con toda una instalación general para la dotación de gas lp y la ubicación estratégica de tanques de gas estacionarios ubicados en el patio de maniobras.
ACABADOS GENERALES DEL EDIFICIO
Aparentemente el edificio cuenta con acabados en sus fachadas de cristal templado, concreto, así como las vigas de acero, tensores.
Para el estacionamiento el piso de rodamiento y área de estacionamiento será acabado pulido.














No hay comentarios:
Publicar un comentario